FRAG DIE BETON KI

Was möchten

Sie wissen?

Achtung! Die allgemein anerkannten Regeln der Technik unterliegen regelmäßigen Änderungen und Weiterentwicklungen (z. B. Normenreihe Beton DIN 1045:2023). Bitte prüfen Sie die Antworten des Chatbots. Die eingeführten technischen Baubestimmungen finden Sie in den Verwaltungsvorschriften „Technische Baubestimmungen" der einzelnen Bundesländer.

Lassen Sie
sich inspirieren.

Inspirieren Sie andere.

Objekt einreichen

Erweiterung der Zentralbibliothek der Hochschule München

meck architekten gmbh Andreas Meck, Axel Frühauf

Schlagworte zu passenden Webseiten in unserem Auftritt

Dauerhaftigkeit Fertigteile Sichtbeton Transportbeton

Architektur

meck architekten gmbh
Andreas Meck, Axel Frühauf

Bauherr

Freistaat Bayern
vertreten durch
Staatliches Bauamt München 2
Ludwigstraße 18
80539 München

Ansprechpartner:
Frau Thiel-Lintner

Projektbeteiligte

Axel Frühauf, Wolfgang Amann (Projektleiter); Benjamin Nejedly, Francesca Formatier (Mitarbeiter); a+p architekten, München (Bauleitung), Bernd Krämer (Projektleiter), Reinhard Pfannenstill, Thomas Sporer, Antonia Hille (Mitarbeiter); Rb-BauPlanung GmbH, München (Tragwerksplaner), Daniela Juhl (Projektleiterin); Lohrer.hochrein landschaftsarbitekten, München (Landschaftsarchitektur), Frau Lottspeich (Projektleiterin), Herr Beyhl (Mitarbeiter); Max Bögl , München (Transportbeton);
Guggenberger Beton-Fertigteilwerk GmbH, Laberweinting, Hemmerlein Ingenieurbau GmbH, Bodenwöhr (Betonfertigteile); Peri GmbH Schalung Gerüst Engineering, Weißenhorn (Schalung)

Jahr

2013

Ort

München

Konstruktionsmerkmale

Massivbau

Besonderheiten

Zusammensetzung des verwendeten Betons
C25/30 und C30/37

Beschreibung

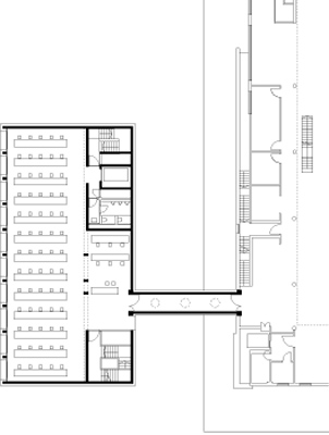
Das Hauptgebäude der Münchener Hochschulbibliothek an der Lothstraße musste erweitert werden: Höhere Studierendenzahlen und das Vorhaben, die auf drei Standorte verteilten Bestände stärker zu zentralisieren, haben dies nötig gemacht. Meck Architekten hatten sich 2010 in einem Gutachterverfahren durchgesetzt. 

Den nun fertig gestellten Neubau wird man durch Zufall kaum finden. Er liegt hinter dem Bestandsgebäude, so dass er von der Lothstraße aus nicht zu sehen ist, und von Nordwesten verstellen Bauten den Blick. Sie sollen allerdings mittelfristig abgerissen werden. Dann wird der Kontakt zu einem kleinen Park im Nordwesten und zur Lazarettstraße mit dem alleenartigen Baumbestand hergestellt werden, auf den hin das Gebäude entworfen wurde. Denn dieser Bezug zum Freiraum wurde in mehrerlei Hinsicht berücksichtigt. Zum Ersten in der zurückhaltenden Form und Erscheinung: Platziert wurde mit einem Abstand von etwa acht Metern zum Bestandsgebäude ein viergeschossiger Quader auf einer Grundfläche von 14 mal 30 Metern. Zum Zweiten im Fassadenmaterial: Zwischen den waagrechten Bändern aus vorgehängten Sichtbetonelementen, die die Geschossdecken anzeigen, sind die geschlossenen Flächen und Stützen von außen mit kesseldruckimprägnierten Furnierschichtholzplatten verkleidet. Sie werden mit der Zeit ihren derzeit noch vergleichsweise kräftigen Farbton allmählich verlieren. Und zum Dritten ist der Baukörper zum Grünraum durch geschosshohe Metallelementverglasungen hin geöffnet, während die zum Bestand hin orientierte Seite größtenteils und die Stirnseiten vollständig geschlossen sind. 

Der Besucher betritt den Erweiterungsbau durch einen geschlossenen Brückengang vom mittleren Geschoss der bestehenden Bibliothek. Ein zweigeschossiger Lesesaal mit einer Galerie für Lesezonen und Nebenräume befindet sich in den oberen beiden Etagen. Das erste und zweite Stockwerk bietet Raum für Bestände des Freihandmagazins und Arbeitsräume. Im Erdgeschoss liegen Büro und Technikräume, diese Ebene ist durch einen separaten Eingang erschlossen. 

Beton

Sichtbeton ist im gesamten Neubau prägendes Gestaltungselement, aufbauend auf eine klare Grundrissstruktur, der ein strenges Konstruktionsraster zugrunde liegt. Von außen zeigen vorgehängte Stahlbetonfertigteilelemente die Geschosse an und lassen die funktionale Schichtung in den zunehmenden Geschosshöhen erkennen, signifikant sichtbar vor allem in den oberen beiden Stockwerken, die vom zweigeschossigen Lesesaal eingenommen werden. Im Innern ist der Verbindungsgang durch Sichtbeton, das Treppenhaus durch einen angenehmen Kontrast zwischen weißen Vertikalflächen und dem Beton der Treppen in Auf- und Untersicht charakterisiert. Vor allem aber in den Bibliotheksräumen ist die sichtbare Stahlbetonkonstruktion aus Trägern und Stützen das markante Gestaltungselement. Die vollständige Längsseite nach Nordwesten ist jeweils in eine Stützenreihe aufgelöst. Um zu veranschaulichen, dass die Last nach oben abnimmt, wurde der Abstand zwischen den Stützen (Querschnitt 25 mal 50 cm) im Lesesaal verdoppelt: Beträgt das Achsmaß unten 1,45 Meter, liegt es oben bei 2,90 Metern. Sichtbar sind ebenfalls die in einer Ebene liegenden, gleich hohen Träger: die Unterzüge über den Stützen (50 mal 65cm) und die schlanken, den Raum überspannenden Querrippen (20 mal 65 cm). Dadurch wird, wie in den Außenansichten, zwischen horizontaler und vertikaler Gliederung unterschieden. Gleichzeitig stellt die kraftschlüssige Verbindung aus Quer-, Längs- und Horizontalrichtung eine homogene Konstruktionsstruktur her, die an die klassischen Moderne und auf August Perret verweist. Im Bereich zwischen den Querträgern wurden schalldämpfende Elemente und Beleuchtung angebracht, teilweise wurde der Zwischenraum für die Haustechnik genutzt; die darüber liegende Ortbetondecke ist 15 Zentimeter hoch. Lediglich im Bereich der Galerie des Lesesaals wurde die strenge Ordnung aufgegeben – allerdings nicht grundlos, denn so wurde ein stützenfreier Zugang aus dem Bestandsgebäude möglich.  

Bei aller Pragmatik und Strenge erhält das Gebäude durch die Betonkonstruktion einen Ausdruck, der die tragende und funktionale Struktur repräsentiert. In dem auf diese Weise Raum und Konstruktion aufeinander bezogen werden, ist dieses Gebäude ein Beispiel für Tektonik, wie sie Kenneth Frampton verstanden wissen wollte: „Selbstverständlich geht es hier nicht um das Aufzeigen von Struktur und Technik, sondern vielmehr um ihr poetisches Ausdrucksvermögen. Insofern Tektonik einer Poetik der Konstruktion gleichkommt, ist sie eine Kunst, in dieser Hinsicht aber nicht unbedingt figurativ oder abstrakt.“

Quelle

Beton Marketing Süd GmbH, Text: Christian Holl, frei04 publizistik

Bildnachweis: Fotos: Michael Heinrich, München; Pläne: Architekten

Schlagworte zu passenden Webseiten in unserem Auftritt

Dauerhaftigkeit Fertigteile Sichtbeton Transportbeton

Verwandte Objekte

Social Stream

Instagram

Linkedin

Youtube

beton.org Instagram Profile
Linkedin
YouTube

Folgen Sie uns auf:

Instagram Icon Linkedin Icon YouTube Icon