FRAG DIE BETON KI

Was möchten

Sie wissen?

Achtung! Die allgemein anerkannten Regeln der Technik unterliegen regelmäßigen Änderungen und Weiterentwicklungen (z. B. Normenreihe Beton DIN 1045:2023). Bitte prüfen Sie die Antworten des Chatbots. Die eingeführten technischen Baubestimmungen finden Sie in den Verwaltungsvorschriften „Technische Baubestimmungen" der einzelnen Bundesländer.

Lassen Sie
sich inspirieren.

Inspirieren Sie andere.

Objekt einreichen

Probenhaus für das Ballett am Rhein in Düsseldorf

Glas- und carbonfaserbewehrte Sichtbetonfassade

Schlagworte zu passenden Webseiten in unserem Auftritt

Glasfaserbeton Sichtbeton Spannbeton Textilbeton

Architektur

gmp Architekten von Gerkan, Marg und Partner, Hamburg

Bauherr

Landeshauptstadt Düsseldorf

Projektbeteiligte

Hartwich, Mertens Ingenieure, Berlin (Tragwerksplanung); Cobiax Technologies, Zug (Hohlkörperdecken); Hering Bau, Burbach (Textilbetonfassadenelemente)

Jahr

2014

Ort

40225 Düsseldorf, Merowinger Straße 88

Beschreibung

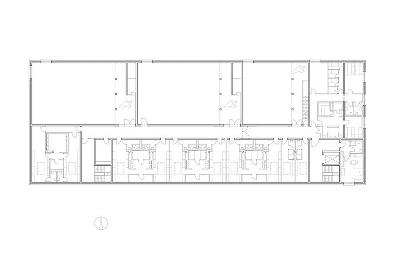
Kein gemütliches Zuhause, sondern einen Arbeitsplatz – eine Fabrik im besten Sinne – hat die Ballettkompanie der Deutschen Oper am Rhein mit ihrem neuen Probenhaus erhalten. Das nach Plänen von gmp Architekten auf dem Gelände des ehemaligen Straßenbahndepots „Am Steinberg“ in Düsseldorf Bilk errichtete Gebäude bietet auf rund 3.000 Quadratmetern Nutzfläche optimale Trainingsbedingungen für die über 100 Tänzer und Schüler um den Ballettdirektor und Chefchoreografen Martin Schläpfer. Insgesamt fünf Säle stehen ihnen zur Verfügung, zwei davon mit Bühnenmaßen, außerdem Umkleiden, Aufenthalts- und Behandlungsräume, ein Physiotherapiebereich und ein Apartment für Gastkünstler.

Der längliche Neubau liegt etwas versteckt hinter einer geschlossenen Wohnbebauung an der Kopernikusstraße im Norden und den denkmalgeschützten Backsteinhallen des alten Bahndepots im Süden. Von beiden setzt er sich mit seiner einfachen Form und der nüchternen Sichtbetonfassade deutlich ab. Einzig ein Höhenversprung entlang der Südseite soll zwischen historischem Bestand und neuem Balletthaus vermitteln.

Der Eingang befindet sich unter einer markanten Auskragung auf der westlichen Schmalseite an einem Vorplatz zur Merowingerstraße hin. Hier öffnet sich das Gebäude mit einer großen Verglasung zum Außenraum; dahinter liegt das zweigeschossige Foyer mit angeschlossener Kantine. Rechter Hand erstreckt sich ein Gang durch die gesamte Länge des Hauses und teilt es gleichsam in zwei Hälften. Zur Linken liegen die doppelgeschosshohen Ballettsäle entlang der Nordfassade: im Erdgeschoss die zwei großen, darüber die drei kleineren. Jeder Saal wird über ein großzügiges Entree erschlossen; einer hat zudem eine Tribüne mit über 100 Sitzplätzen und ist mit einer Bühnentechnik ausgestattet, die Vorführungen und „theaterreale“ Proben erlaubt. Rechts vom Flur reihen sich die Funktionsräume auf drei Geschossen aneinander.

Innen verzichteten die Architekten ebenfalls auf dominante Gestaltungselemente; der gewünschte Werkstattcharakter soll sich ganz der Funktion unterordnen. Farbe und Materialität sind zurückhaltend; die Wände in Sichtbeton belassen. Hoch angeordnete Fensterbänder sorgen in den Ballettsälen für natürliches Licht; große Glaselemente stellen den Außenbezug her.

Das Gebäude wurde in nur zehn Monaten Bauzeit in einer öffentlich-privaten Partnerschaft (ÖPP) mit der Firma Hochtief Solutions realisiert. Diese übernahm die Baukosten von rund 26 Millionen Euro und vermietet das Balletthaus für 30 Jahre an die Rheinoper; die Miete tragen die Städte Düsseldorf und Duisburg als Operngemeinschaft.

Beton

Grauer, glatt geschalter Sichtbeton, großformatige Fenster und dunkle Metallrahmen prägen das neue Probenhaus. Die Tragkonstruktion besteht aus Stahlbeton: Die Decke über den Ballettsälen ist als einachsig bewehrte Spannbeton-Fertigdecke ausgeführt; in Bereichen mit großen Spannweiten wurden Hohlkörper aus recyceltem Kunststoff in die Decken integriert. Sie sorgen für eine deutliche Material- und Gewichtseinsparung ohne die statischen Eigenschaften der Betondecke zu beeinträchtigen. Wandartige Träger im Bereich der unteren beiden (stützenfreien) Ballettsäle übernehmen den Lastabtrag aus den drei oberen Sälen, dem Dach und der Decke.

Die rund 1.500 Quadratmeter messende Betonfassade besteht aus scharfkantigen glas- und carbonfaserbewehrten Textilbetonelementen mit nur 40 Millimeter Dicke. Ihre Oberfläche entspricht mit der Klassifizierung SB 4 der höchsten Sichtbetonklasse.

Quelle

baunetz Baunetz Wissen Beton

Bildnachweis: Marcus Bredt, Berlin

Schlagworte zu passenden Webseiten in unserem Auftritt

Glasfaserbeton Sichtbeton Spannbeton Textilbeton

Verwandte Objekte

Social Stream

Instagram

Linkedin

Youtube

beton.org Instagram Profile
Linkedin
YouTube

Folgen Sie uns auf:

Instagram Icon Linkedin Icon YouTube Icon