Forschungsgebäude für Sprachtechnologie an der Universität Saarbrücken
av-a Veauthier Architekten, Berlin Andreas Veauthier, Anna-Pia Knebel, Tanja Klein
Architektur
av-a Veauthier Architekten, Berlin 
Andreas Veauthier, Anna-Pia Knebel, Tanja Klein
Bauherr
Ministerium für Bildung und Wissenschaft 
vertreten durch das Ministerium für Finanzen und Bundesangelegenheiten
vertreten durch das Landesamt für Bau- und Liegenschaften des Saarlandes
Projektbeteiligte
Thomanek + Duquesnoy Diplomingenieure, Landschaftsarchitekten, Berlin (Landschaftsarchitekt); app-architekten, Dominik Tiator, Frank Hubig, Saarbrücken (Bauleitung); Ingenieurbüro Kliebenstein + Partner, Neunkirchen/Saar (Fachplanung Elektro); Ingenieurbüro für Bauwesen Ospelt, Merzig (Statik); Ingenieur Gesellschaft Pohren mbH, Völklingen (Haustechnik); Peter Gross Fertigteilwerk GmbH, St. Ingbert (Fertigteile)
Jahr
2005
Ort
Saarbrücken, St. Johann, Im Stadtwald
Beschreibung
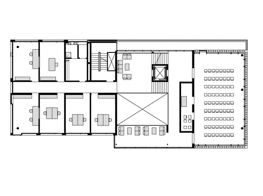
Das Zentrum für Sprachforschung und Sprachtechnologie auf dem Unicampus Saarbrücken wurde im Juni 2005 fertiggestellt. In dem viergeschossigen Neubau mit rund 1.800 m2 arbeiten Wissenschaftler aus den Fachbereichen der Phonetik, der Informatik, der Psycho- und Computerlinguistik an Themen der Spracherkennung und Sprachsteuerung.
Mit seinen Bandfassaden sowie der Verwendung von Sichtbeton bezieht sich der Solitär auf die Architektur der Umgebung aus den 60er Jahren und setzt sich zugleich von dieser ab. Der unregelmäßige Rhythmus der Fensterfassaden, die verspringenden vertikalen Linien sowie der schwarz durchgefärbte Waschbeton der Brüstungsbänder sind eine Neuinterpretation der klassischen Ästhetik des öffentlichen Hochschulbaus.
Der an der Waldseite gelegene große Vortragssaal ist geprägt durch eine Lamellen-Fassade aus massiven Lerchenholz-Pfosten. Je nach Blickwinkel wirkt der Raum mal offen, mal eher geschlossen und erhält so seine besondere Dynamik.
Das Innere spiegelt die von den Wissenschaftlern gewünschte Offenheit und Kommunikationsfähigkeit des Gebäudes wieder: Die dreigeschossige, zu zwei Seiten verglaste Halle ist das Herzstück des Gebäudes. Treppen in wechselnder Richtung führen hier zu den fünf Splitlevels. Die großzügigen Podeste wurden inzwischen mit Loungemöbeln ausgestattet und dienen als interdisziplinäre Kommunikations-Platformen. Die dominierenden Materialien in den Innenräumen sind schwarzer Granit, Sichtbeton und Kirschbaum-Furniere.
Der Neubau ist das erste realisierte Gebäude aus der Masterplanung des Unicampus Saarbrücken, die auf den Wettbewerbserfolg von Andreas Veauthier in Zusammenarbeit mit Prof. H. Machleidt im Jahr 2000 und deren Ausarbeitung zu einem Masterplan 2003 zurückgeht.
Beton
Das Gebäude reiht sich in seiner Gestaltung und Materialität in die Typologie der Institutsgebäude auf dem Campus ein. Dennoch soll es deutlich eine neue Generation präsentieren. Dies betrifft auch die Ausführung der Beton-Fertigteile, welche sich von den älteren abheben und die Möglichkeiten des technischen Fortschritts ausschöpfen. Folgende Arten von Beton-Fertigteilen wurden eingesetzt:
Brüstungen/Attika - großformatige, vorgehängte (schwarze) Betonfertigteile mit unterschiedlichen Abmessungen. Die hinterlüfteten Fassadentafeln d=12,5/14,5 bestehen aus anthrazitfarbenem Beton mit Glitzereffekt und bearbeiteter (feingewaschener) Oberfläche. Bei der Farbgebung wurde sowohl der Zementleim eingefärbt als auch ein Zuschlagstoff der gewünschten Farbe eingesetzt, um eine möglichst gleichmäßige, dunkle Färbung zu erreichen.
Zusammensetzung: Portlandzementverband mit 5 % Qxidschwarz eingefärbt, Zuschlag: Basalt tiefschwarz (Sand + Split), Korngröße 5-12 mm. Da eine Durchfärbung des Betons nur in den ersten 5-8- cm erreicht werden kann, musste besonderes Augenmerk auf die sorgfältige Ausführung der teilweise als Oberflächen sichtbaren Schmalseiten der Teile gelegt werden. Die Oberfläche des Betonwerksteins wurde nach der Herstellung ausgewaschen, um die Farbwirkung zu verstärken: Hierbei wurde Waschbeton-Paste als Verzögerer eingesetzt, der, auf die Schalung aufgebracht, ein Auswaschen von nur 1 mm der Oberfläche ermöglichte.
Der Einsatz des Natursteins Basalt als Zuschlag hat neben dem gewünschten Farb-Effekt einen weiteren Vorteil: Er bewirkt eine hohe Festigkeit und somit Langlebigkeit des Betons. Zusätzlich wurden alle Oberflächen nach der Montage hydrophobiert, somit witterungsbeständig gemacht.
Die Lieferung und Montage erfolgte mittels Mobilkran. Die Platten sind mit je mind. 2 Edelstahl-Fassadenankern an die Stahlbeton-Konstruktion gedübelt.
Als Geschossdeckenverkleidung wurden dünnwandige, leichte Betonfertigteilplatten aus Glasfaserbeton (20-30mm, grauer Feinbeton, Bewehrung aus Glasfasern) verwendet.
Bildnachweis: Werner Huthmacher, Berlin

 
			 
					 
					 
					 
					 
					 
					 
								 
								 
								 
								 
								 
								 
								 
								 
								 
								 
 
     
    
		
Social Stream
Instagram
Linkedin
Youtube
Folgen Sie uns auf: