FRAG DIE BETON KI

Was möchten

Sie wissen?

Achtung! Die allgemein anerkannten Regeln der Technik unterliegen regelmäßigen Änderungen und Weiterentwicklungen (z. B. Normenreihe Beton DIN 1045:2023). Bitte prüfen Sie die Antworten des Chatbots. Die eingeführten technischen Baubestimmungen finden Sie in den Verwaltungsvorschriften „Technische Baubestimmungen" der einzelnen Bundesländer.

Lassen Sie
sich inspirieren.

Inspirieren Sie andere.

Objekt einreichen

Wohn- und Geschäftshaus, Berlin

Arnke Häntsch Mattmüller AHM Architekten BDA

Architektur

Arnke Häntsch Mattmüller
AHM Architekten BDA

Bauherr

ANH Hausbesitz GmbH & Co. KG, Arnsberg/Berlin

Projektbeteiligte

Projektentwicklung
ANH Haubesitz GmbH & Co. KG, Arnsberg/Berlin

Bauleitung
Jablonka Sieber Partg mbb Architekten

Fachplanende
Tragwerksplanung: Bauart Konstruktions GmbH & Co. KG
Bauphysik/Akustik: Bauart Konstruktions GmbH & Co. KG
Elektro: Ingenieurgesellschaft für rationelle Gebäudetechnik mbH
Haustechnik: Ingenieurgesellschaft für rationelle Gebäudetechnik mbH
Brandschutz: Bauart Konstruktions GmbH & Co. KG
Lichtplanung: Weißpunkt und purpur
Landschaftsplanung: AHM Architekten BDA

Jahr

2024

Ort

Berlin

Konstruktionsmerkmale

Kombination aus massiver Beton- und leichter Holzbauweise

Besonderheiten

Die Glasschiebetüren lassen sich vollständig hinter die Holzfassade verschieben. Dadurch kann sich das Apartment großzügig wie eine Loggia zur Stadt öffnen.

Beschreibung

Die Berliner Stadtteile Wedding und Moabit (das administrativ zu Mitte gehört) haben etwas gemeinsam: Seit Jahrzehnten wird den beiden Vierteln prognostiziert „am Kommen“ zu sein. Glücklicherweise aber lassen sie sich dabei Zeit. Die Gentrifizierung mit all ihren Vor- und Nachteilen geht auch hier nicht vorüber, aber ein rasanter Bevölkerungsaustausch hat bisher nicht stattgefunden. Beim Durchschlendern von Moabit, das beinahe inselartig zwischen der Spree, dem Berlin-Spandauer Schifffahrts-, dem Westhafen- und dem Charlottenburger Verbindungskanal sitzt, liegen Schick und Brüchig noch dicht beieinander. Was dieser Bezirk mit den meisten anderen Berliner Vierteln teilt: Auch hier sind Wohnungen rar. Seit Herbst 2024 sorgt ein kombiniertes Wohn- und Geschäftshaus mit insgesamt 30 Kleinstwohnungen für Abhilfe. Damit sind 30 bis 45 Quadratmeter gemeint; studentische Budgets dürften hier allerdings nicht ganz reichen.

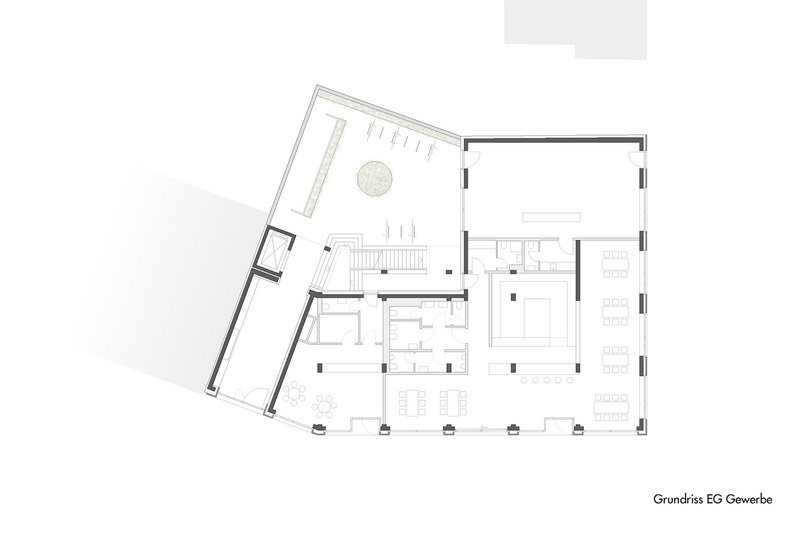
Der Neubau steht leicht abgesetzt von einer großen Kreuzung auf einem Eckgrundstück, wo zuvor in einem Flachbau ein Supermarkt beherbergt war. Das siebengeschossige Haus tut der Ecke städtebaulich gut, weil es mit einem kleinen Knick den Blockrand auffüllt. Ihn jedoch nicht ganz abschließt; ein Durchgang zum Hof mit alten Bäumen, E-Ladestation und Fahrradständern bleibt frei. Von hier werden über Laubengänge alle Wohnungen in den fünf Obergeschossen erschlossen. Im ersten Stock liegen sechs Büros. Im Erdgeschoss ergänzen drei Gewerbeeinheiten den Nutzungsmix – hier sind bereits ein Café und ein Yoga-Studio eingezogen.

Die Apartments haben alle große Glasschiebetüren und einen kleinen Austritt zur Straßenseite. Außenliegende bewegliche Holzelemente sorgen nicht nur für den Sonnenschutz sondern auch ein veränderliches Fassadenbild. Die Wohnungen haben eingebaute offene Küchenzeilen, Tageslichtbäder und abgeteilte Schlafnischen. 

Beton

Zunächst einmal tritt die Holzfassade ab dem ersten Obergeschoss in Erscheinung. Es handelt sich bei diesem Haus aber um einen Holz-Beton-Hybridbau. Diese „Mischwesen“ entstehen in den letzten Jahren gehäuft, um die Vorzüge beider Materialien zu nutzen – da ist der nachwachsende und vergleichsweise leichte Baustoff auf der einen und der tragfähige, Brand- und Schallschutzanforderungen bedienende, frei formbare Beton auf der anderen Seite. „Ganz wichtig ist eine frühzeitige Klärung der Schnittstelle zwischen Massiv- und Holzbau,“ betont Rolf Mattmüller, der das „M“ im Büronamen beisteuert. So auch hier: Der Keller und das Erdgeschoss bestehen aus Stahlbeton und bilden den robusten Sockel des hölzernen Aufbaus. Auch die Innenwände im ersten Stockwerk bestehen aus Beton. Es bleibt aber nicht allein bei den statischen Erwägungen. Die Gewerbe- und die Büroräume sind durch die Sichtbetonwände charakterisiert, was sich mit den hölzernen Decken sehr gut verträgt. Auf der Hofseite ist dem eigentlichen Gebäude regalartig die Laubengangerschließung mit den offenen Treppen vorgesetzt. Sie besteht wie der Aufzugsschacht aus vorgefertigten Betonteilen. Das setzt den schönen Materialmix fort und erledigt außerdem die Anforderungen an den Brandschutz. So wie der Hof mit einem urban gardening-Angebot gemeinschaftlich genutzt werden kann, steht auch die Dachterrasse auf dem eingeschossig weitergezogenen Betonsockel allen im Haus zur Verfügung. 

Quelle

Christina Gräwe für EINSATEAM

Bildnachweis: Fotos: Jordana Schramm, Berlin / Pläne: AHM

Social Stream

Instagram

Linkedin

Youtube

beton.org Instagram Profile
Linkedin
YouTube

Folgen Sie uns auf:

Instagram Icon Linkedin Icon YouTube Icon