FRAG DIE BETON KI

Was möchten

Sie wissen?

Achtung! Die allgemein anerkannten Regeln der Technik unterliegen regelmäßigen Änderungen und Weiterentwicklungen (z. B. Normenreihe Beton DIN 1045:2023). Bitte prüfen Sie die Antworten des Chatbots. Die eingeführten technischen Baubestimmungen finden Sie in den Verwaltungsvorschriften „Technische Baubestimmungen" der einzelnen Bundesländer.

Lassen Sie
sich inspirieren.

Inspirieren Sie andere.

Objekt einreichen

Stadthaus, Kirchheim unter Teck

mehr*architekten *brodbeck *rössler *van het hekke, Kirchheim unter Teck

Architektur

mehr*architekten
*brodbeck *rössler *van het hekke, Kirchheim unter Teck

Bauherr

privat

Projektbeteiligte

Fachplanung
Tragwerksplanung: BB Baustatik GmbH, Kirchheim unter Teck
Haustechnik: Pfisterer Haustechnik, Esslingen
Bauphysik: Jürgen Rieschl, Lenningen

Jahr

2022

Ort

Kirchheim unter Teck

Konstruktionsmerkmale

Effiziente, geschossweise Herstellung in Ortbeton für den gesamten Häuserblock

Besonderheiten

Raumbildende Beton-Treppenläufe

Auszeichnungen

Hugo Häring Auszeichnung 2023
Anerkennung, Häuser des Jahres 2023
Nominierung DAM Preis 2024

Beschreibung

Ob die schwäbische Mittelstadt Kirchheim ihren Namenszusatz „unter Teck“ von der gleichnamigen Burg hat, unter der sie liegt, ist nicht eindeutig geklärt, aber plausibel. Tatsache ist, dass sich westlich der historischen Altstadt seit 2017 das Steingauquartier entwickelt, ein Stadtentwicklungsprojekt zur Schaffung neuen Wohnraums in einem lebendigen Umfeld. Die Wohnformen reichen dabei von temporären über gemeinschaftliche und integrative Modelle bis hin zum Einfamilienhaus. Die Belegung der Parzellen wurde über eine Bewerbung mit anschließendem Vergabeverfahren ermittelt. Inzwischen sind alle Grundstücke vergeben; an den Planungen waren verschiedene Büros beteiligt.

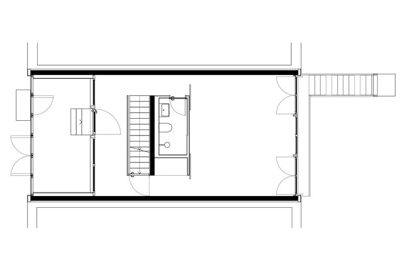
Das ortsansässige Büro mehr*architekten hat dort neben einem Baugruppenhaus auch einen Neubau für eine junge Familie realisiert. Das Team und die Bauherrschaft kamen über ein Nachrückverfahren zum Zug – dem ursprünglichen Tandem erschien das sehr schmale Grundstück zu heikel. Mit der nur sechs Meter messenden Baulücke sind mehr*architekten kreativ umgegangen, indem sie die verschiedenen Funktionen geschickt übereinander gestapelt haben.

Man betritt das Haus zwar wie gewohnt über das Erdgeschoss. Hier liegt auch erwartungsgemäß die Garderobe (und ein Atelierraum), dahinter aber eine versteckte Treppe, die ins eigentliche Zentrum des Familienlebens im ersten Obergeschoss führt. Es gibt dort einen doppelt hohen Wohnraum, an den sich die offene Küche mit Essplatz anschließt. Oberhalb der Küche ist eine Zwischenetage als Spiel- und Arbeitsfläche eingezogen; dorthin führt eine – dieses Mal offene – Treppe. Das Spiel mit den unterschiedlichen Treppenformen geht weiter: Ins zweite Obergeschoss mit den Schlaf- und Kinderzimmern gelangt man über eine gewendelte Treppe. Ganz oben auf sitzt mit der Dachterrasse ein „grünes Zimmer“ mit Ausblicken bis in die Schwäbische Alb.

Beton

Wie auch bei anderen Projekten des Büros bestimmt der Rohbau aus Ortbeton nicht nur die Konstruktion, sondern auch den Charakter des Hauses. Es waren pragmatische wie ästhetische Gründe, die zu dieser Materialwahl führten. Zum einen sorgte sie für eine erhebliche Zeitersparnis im Bauablauf, da der gesamte Häuserblock mit rund elf Häusern parallel Stockwerk für Stockwerk von einer Rohbaufirma durchgeführt wurde. Damit konnten dann auch die Anforderungen an den Schall- und Brandschutz sowie die Statik mühelos erfüllt werden.

Die Oberflächen der Decken und Wände wurden lediglich lasiert. „Wände und Decken zu verputzen oder zu streichen kam für uns nicht in Frage, wir wollten den rohen unfertigen Charakter als Atmosphäre für das Haus“, erläutert David Brodbeck die ästhetischen Ansprüche. Die Betonsichtigkeit trifft dabei auf Einbauten und leichte Trennwände aus Sperrholz sowie unterschiedliche Bodenbeläge. Die Nachhaltigkeit bedenken mehr*architekten ebenfalls: „Beton ist nunmal robust und hat eine lange Lebensdauer.“

Quelle

Christina Gräwe für EINSATEAM

Bildnachweis: mehr*architekten; Fotos: Sebastian Schels, München

Social Stream

Instagram

Linkedin

Youtube

beton.org Instagram Profile
Linkedin
YouTube

Folgen Sie uns auf:

Instagram Icon Linkedin Icon YouTube Icon